-
Artworks
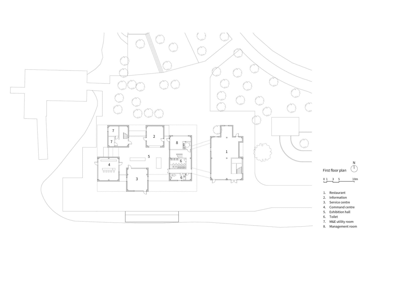
Visitor Center of Kunshan Urban Park / Chinese Mainland
Atelier Archmixing / Chinese MainlandFurther images
-
(View a larger image of thumbnail 1
)
-
(View a larger image of thumbnail 2
)
-
(View a larger image of thumbnail 3
)
-
(View a larger image of thumbnail 4
)
-
(View a larger image of thumbnail 5
)
-
(View a larger image of thumbnail 6
)
-
(View a larger image of thumbnail 7
)
-
(View a larger image of thumbnail 8
)
-
(View a larger image of thumbnail 9
)
-
(View a larger image of thumbnail 10
)
DFA Design for Asia Awards 2025 l Bronze Award l Spatial Design l Hospitality & Leisure Spaces
Canopy of Light
Transforming a former sales office into a forest gateway, the design assembles pitched-roof “small houses” beneath a perforated grid-shell canopy—an airy pavilion filtering dappled sunlight like forest leaves. Modular structures, eco-conscious materials, and Jiangnan hues create a porous, adaptive landmark bridging city and nature.
-
(View a larger image of thumbnail 1
)

